
As in a home, people who are proud of and love their office are more inclined to invite people in.
CoBiz Financial, a local business bank located in Colorado and Arizona, requested of Genslera workplace that would create an elevated customer and employee experience and tell their story – a place they could be proud to show.

“CoBiz is not the stereotypical financial institution,” says Becca Faull, senior interior designer at Gensler’s Denver office. “They’re very fun, and very personal, and the persona of older banking institutions doesn’t fit them. Their people are their most valuable asset, and they wanted to show that with their workplace. Their old space was choppy with high walls everywhere, and they didn’t feel good about bringing their clients there.”

“Their original space was oversized for the headcount and did not enhance the experience of customers and employees. High walls, lack of client meeting destinations, absence of casual social interaction spaces, and inability to adjust their workspace were all in conflict with the CoBiz brand.”
“And they wanted to enhance their technology so that their employees weren’t tethered to their desks,” says Ms. Faull.
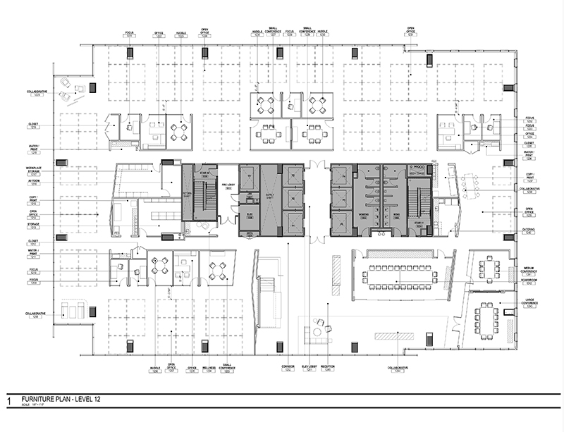
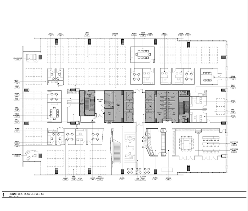
Gensler set about creating a shared, consistent experience around CoBiz’s core values and an elevated level of hospitality. Spread across 44,000 square feet on the 12thand 13thfloors of a brand new building, CoBiz’s new workspace is an inclusive community, telling the company’s story through an inviting “Modern West” lens.


A central collaborative zone serves as employee lounge, casual meeting space, training room breakout, and social gathering space for events.

The new offices reduce to 330 square feet per employee, connecting people by breaking down real and figurative silos in their work.
Ascending a connecting stair, employees and visitors find the “Hawk’s Nest, a central breakout and café space. A central collaborative zone serves as employee lounge, casual meeting space, training room breakout, and social gathering space for events.
>9 private offices (down from 40), 155 open plan workstations. Workstations feature lower panels for more visibility across departments, and more movement. “The number one priority in workstation design was to bring the walls down. Storage towers and shelves allow for personalization, and people are oriented back-to-back between workstations, encouraging more collaboration.”
>20 tech enabled conference and team huddle rooms
>10 focus rooms for quiet, uninterrupted work
>A corner collaborative space nestled within the open office
>10 additional collaborative spaces for team members to work in and manage their accounts
“Everything has easy connectivity with wireless, and employees can use QuickShare and Microsoft Hub, which makes it really easy for them to get up and move around,” noted Ms. Faull.

Workstations, located on both levels, are situated on the perimeter and offer sweeping mountain views. A “front porch” reception space introduces CoBiz’s identity in elevated hospitality, with a gold inlaid “welcome” at the foot of the reception, a seating area with great views and lines, and credenzas holding coffee and water that guests can help themselves too.
The new CoBiz offices have a reassuring quality that isn’t by accident. Set against a strong backdrop of downtown Denver views, spaces are anchored by the “Modern West,” a carefully crafted sequence of brand experiences embodying CoBiz’s identity.
“The space is very textural and contemporary,” said Ms. Faull. “It’s a nod to their modern west roots, but not too western. And modern, but still a bit conservative, with respect to their industry and the work they do. On the sliding doors to a boardroom off of the reception, CoBiz commissioned an artist to do a hawk. We used those pieces to guide our visuals and other branding elements.”

In an open shared space, a hide rug mixes with contemporary furnishings to capture the Modern West narrative. Black recycled belts at the reception desk and elevator lobby introduce rugged textures – a nod to the leather strapping and stitching found in saddles. Patterned tiling, finishes and textures all hint at a western influence. In the Hawk’s Nest, tile patterns mimic the patterns of saddle bags. A kitchen is wrapped in wooden planks.

“One of the CoBiz owners has a branding iron, and we used the iron to brand the wooden planks in the kitchen,” said Ms. Faull. “It was a very unique touch.”
As people move through the space towards the center of the building, color tones subtly intensify, referencing the brightness and vivid color of a sunrise and sunset.On the connecting stair, Gensler created a large-scale installation of pin-mounted hawks that give both floors an ethereal quality not often found in western themed design.
“It’s a really beautiful way of branding that’s a little more subtle, a little more nuanced,” notes Ms. Faull.
The branding elements Gensler brought to the new CoBiz offices give life to something the people at CoBiz are great at – hospitality, service and helping businesses finance their work.