The Chicago region is emerging as a leading innovator in technology and life science industries in the U.S. This fast-paced growth builds upon Chicago’s rich legacy of innovation and education, including Numat, which emerged from Northwestern University in 2011. Numat opened its headquarters in 2024 at the Terminal, with a mission to develop and manufacture advanced physical materials that will reduce the impact of chemical processes and products on human health and the environment.
Numat’s new headquarters in the West Humboldt Park neighborhood of Chicago, was the home of the former Pyle National Company. Opening in 1916 to manufacture the world’s first electric headlights, the company employed scientific figures such Thomas Edison and Nikola Tesla. It took two years for the developer, IBT Group, to substantially revive and develop this historic site, after which Numat signed up to take over two of the three buildings: one a manufacturing-focused building, another an office headquarters in the building directly adjacent. Now, the site is the world’s first industrial-scale metal-organics framework manufacturing campus, supporting Numat’s goal to provide materials and solutions that enhance safety and sustainability through precise chemistry and manufacturing.

Nodding to the site’s legacy of scientific firsts, Numat embraced the site’s history and the established industrial architecture with design partner Perkins&Will. Together, they designed the 62,000 square foot interior fit-out to include office space, research and development, wet lab chemistry environments and scale-up laboratories to support Numat’s manufacturing initiatives.
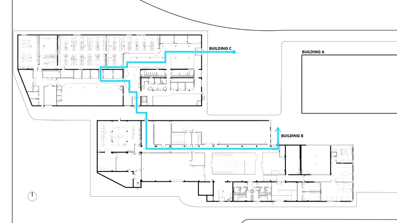
The separate buildings have different features and defining attributes, but together they provide a unified user experience for staff and visitors alike. During design, special attention was given to the one-hour walking tour through the two buildings, exposing visitors to the complex programs of wet lab, manufacturing, chemical storage and office support space in a continuous loop. The laboratory and space planning put the science on display in a safe and accessible manner, so that a potential client can understand Numat’s core values and science easily without disrupting operations.

Perkins&Will delivered interior renovations and laboratory design in close collaboration with the design-build partner ARCO Murray. Throughout the two buildings, modern laboratory and workspaces juxtapose the original restored steel and masonry structure, emphasizing the scientific and industrial legacy of the campus. The character is reflected in the texture of the existing walls, the steel riveted connections, and the dramatic heights that allow light to filter into the interior. Primary laboratory and manufacturing spaces take full advantage of natural daylight streaming from restored skylights, and custom curved portals provide views into laboratories, equipment storage and collaboration space. Contemporary touches such as glossy finishes and curved glass complement the industrial qualities of the manufacturing spaces.
The workplace design focuses on creating a soft and plush experience, delivering a quiet environment suitable for post-laboratory documentation. The finish palette is comprised of a range of blues and light maple wood as a calming contrast to the high-tech finishes used throughout the laboratory spaces. The peaceful palette is dispersed across the ancillary furniture groupings, making space for heads down work or small group collaboration. Together, the design creates a dynamic experience, celebrating innovation excellence and the history of the structure.

One of the technical challenges presented by the project was how to design for programmatic chemical usage, while incorporating Numat’s desire for transparency and connection between the laboratory, manufacturing and office areas. The high volume of chemicals used during daily operations required detailed life safety and fire code analysis by Perkins&Will. The team met multiple times with the Authorities Having Jurisdiction (AHJs) to understand points of concern.
Together, the team used this feedback to shape the overall space planning to take advantage of the existing building separations. After optimizing the location for the high-volume chemical areas, Perkins&Will then interwove workplaces, meeting rooms, collaboration spaces and staff amenities in between the more science-focused spaces.
“Our previous facility was spread out across multiple floors, making collaboration difficult and creating inefficiencies in material and equipment flow. The new facility was intentionally designed to improve these challenges by centralizing teams in a way that fosters informal discussions and better problem-solving,” according to the company.

The design is a clear reflection of the core values that shape the culture and the work of Numat. They have ambitious goals and momentum that were critical for the design to support. The lab and workplace layouts were built with modularity and expandability in mind, allowing Numat to quickly adapt as needs evolve. This flexibility ensures that as the research shifts, Numat can reconfigure spaces without major disruptions. Its headquarters celebrates this balance of the old and the new, ensuring Numat a competitive edge in their rapidly evolving and growing industry.
The company said: “Looking ahead, we see the future of our industry demanding more domestic manufacturing capacity, and our Terminal facility is central to that vision. Our historic campus, which has long been a hub for technological advancement, reinforces our commitment to pushing the boundaries of materials science and manufacturing.”
Editor’s Note: Sam Surath is a project manager at Perkins&Will. Alli Gerardot, LEED AP BD+C, is a former designer for Perkins&Will who was involved in the design of Numat.




